
岁月在今天新家屋主身上几乎没有留下痕迹。谈吐非常优雅得体的Z先生一家,女儿在附近学校读书,这个房子目前主要是陪孩子念书。Z先生也喜欢与朋友小聚,未来孩子长大了,闲暇时间在这里坐下来安安静静的看看书,喝喝茶,聊聊天也是不错的选择。


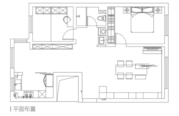
平面布置图
综合考量业主需求,新家最终摒弃传统的客厅设计,以会客及亲子交流的方式来呈现居家文化。没有了沙发电视墙这些思维定式的束缚,一张长桌也可以用餐、会友、品茶……这个新家更多了些宁静致远的书香气。

玄关
白色系的新家,简约大气又充满了艺术气息。玄关柜划分了进门的区域,虽然简单,功能性和颜值都是在线的。




客厅
客厅的区域并没有设计传统的沙发和电视墙,而是以偏中式风格的会客桌椅布置,加上一整面多功能收纳柜。“高斋晓开卷,独共圣人语”闲适好学的氛围在这个新家 静静弥散。




客厅
读书、会客,几个老友小聚,一杯清茶,诉说君子之交淡如水的情谊。这个区域同时也作为三口人的餐区。


厨房的设计以简约实用为主,定制U字型橱柜配合嵌入式的电器。功能性俱全,煎煮烹炸,每餐都充满了爱。


连廊
厨房与连廊之间采用三轨联动拉门,以一带三;更大开启空间,三扇重叠可以节省三分之二的开启空间,视觉空间更为开阔。联动开启,无需费力,一步推拉到位,方便简捷。


卧室
卧室的作用主要是孩子读书时候休息用,过多的装饰会干扰孩子,所以布置非常简约,低饱和度的色彩,无丝竹之乱耳,无案牍之劳形,新家处处是安静清雅的气息。

哈尔滨大树装饰装修实景案例