“需求”
这次我们新家的主人是一对恩爱的小夫妻,两人都很时尚的潮人,房屋的200+的户型相对来说两个人居住足够了。两个人也都是健身达人,希望家里宽敞一些,有在家可以运动的位置。色彩上希望新家更活泼跳脱。设计师王主任运用不同材质肌理的叠加,一如既往的延续了现代、时髦、精致的风格,在细节之处传达着生活中的仪式感。

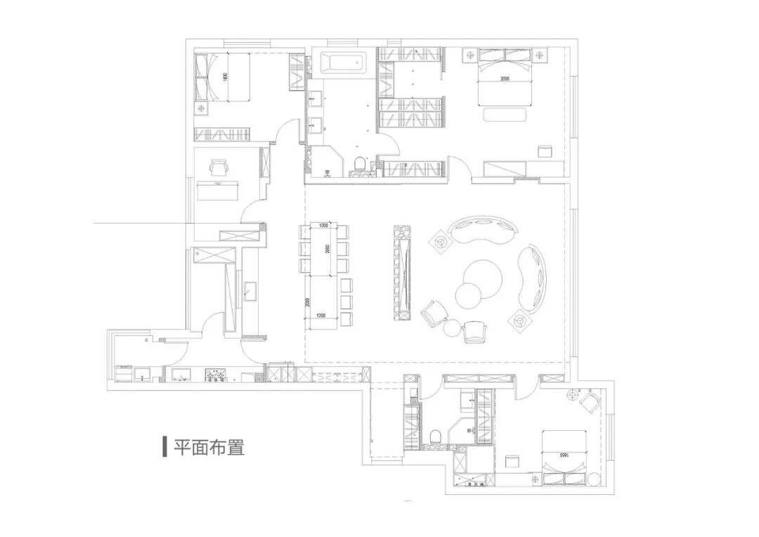
平面布置图
对房屋结构进行了乾坤大挪移式的格局改造
※让原本不合理的卫生间变得更合理,面积更大,空间更开阔
※同时在原有格局储物空间不足的情况下通过格局改造出三个衣帽间,提升了空间的使用效率
狭长的玄关通向敞亮的客厅 ,简约立体的玄关柜大气又让收纳变得精致美观 ,改变格局后 电视墙挡住了原本的玄关方向也让这里视觉上变得更立体。
出了玄关,门口的kaws是小两口珍藏的摆件,安静坐在小台子上欢迎主人回家!
保持空间整洁,收纳功能必不可少,每个空间都有不同需要收纳的物品,针对使用功能而规划收纳方式。
客厅的细节上设计师也花了心思,大面积的纯色的背景和地面配上明亮的黄色单人沙发,两三个条纹靠垫,就像画上的点睛之笔,让整个新家更有灵气和年轻人的活力!连茶几上的小摆件也充满了艺术感!

餐区和西厨安置在一起,空间上看起来更连贯,全屋统一的色系让这里也有了高级餐厅的既视感。地面瓷砖极具设计感的色彩分区,与4米多长的餐岛一体,隔而不断的悬空背景墙,都在表达着屋主的生活和调性。

主卧室是硬汉和少女心的结合,绅士的灰色+少女的粉色+调和的白色让这个房间保持着和谐统一的美感。床头灯、床头柜都不是传统对称的设计,保持了两个人自己的喜好。女主人的床头柜上摆着可爱的宇航员,男主人的床头柜上摆着他们的结婚照片。

儿童房粉粉嫩嫩的小孩子爱的风格,和主卧相似的背景墙风格。搭配上小朋友都喜欢的开心的太阳花挂画、长颈鹿玩偶座椅、小兔子宇航员。整个房间都充满了童趣,连床头灯都是白雪公主。卫生间非常的宽敞。长长的卫浴镜下面是双手盆的的卫浴柜,两个人同时洗漱也一点不耽误。淋浴、浴缸消除一天疲惫的办法总有很多。灰色系的配色显得大气。